Bestill katalog
Bestill katalog

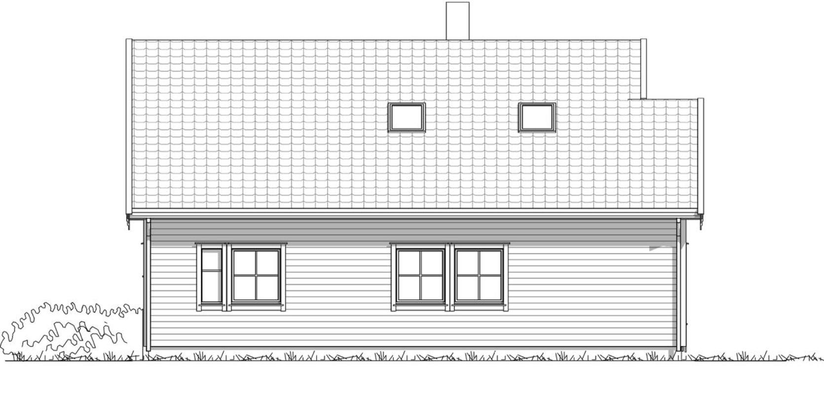
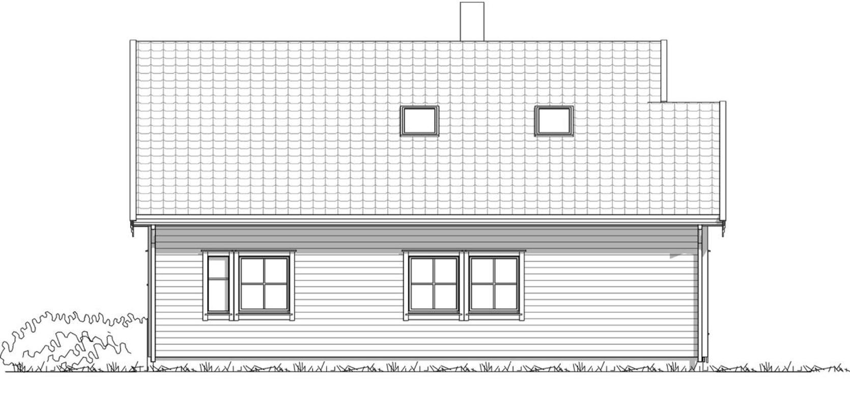
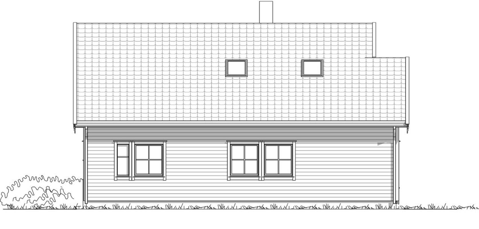
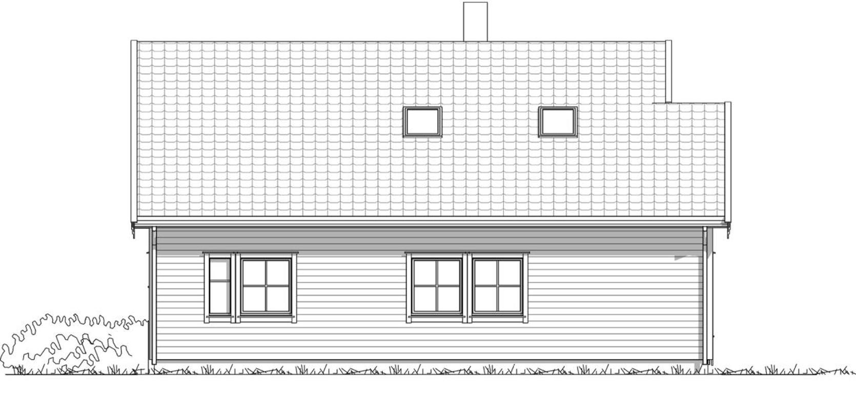
Kvalheim - koselig og tidløst hus

Mesterhus Kvalheim er det perfekte huset for deg som ønsker et koselig og tidløst hjem på mindre tomteareal.

  • BRA 121,0 m²
  • P-rom
  • 3

Med 121 kvadratmeter BRA fordelt over to etasjer, tilbyr dette huset tre soverom, inkludert et stort hovedsoverom i første etasje og to store soverom i andre etasje. Med direkte adkomst til uteplassen fra stuen kan du nyte det gode utelivet.

Inngangspartiet har et praktisk takoverbygg, og du vil finne en romslig bod på en side og et bad på den andre siden av gangen. Stuen har både en spiseplass og en hyggesone, og du har en kort vei til kjøkkenet.

Loftsetasjen har to store soverom og en romslig bod som gir deg god lagringsplass. Huset har også flere boder som gir deg ekstra oppbevaringsmuligheter. Hvis du ønsker, kan du innrede den ene boden til et stort og flott bad.

Mesterhus Kvalheim er spesielt tilpasset en flat tomt, men kan også leveres med en underetasje som kan brukes som en egen leilighet. Dette gjør dette koselige og tidløse huset til en praktisk og fleksibel bolig for deg og familien din.

Bestill katalog