Bestill katalog
Bestill katalog

Skansen - moderne hus for flat tomt

Skansen er et moderne hus med store vindusflater, pulttak og elegant stående trekledning. Samtidig som huset er svært stilig, har det alt en familie trenger.

  • BRA 148,2 m²
  • P-rom
  • 4

Basert på hele Norges favoritthus!
Skansen ble tegnet etter en konkurranse hvor det kom inn mange forslag på folks favoritthus. Resultatet kom ut fra det mest populære forslaget. Skansen er fortsatt en populær husmodell, og derfor har vi nå valgt å vise huset på flat tomt også.

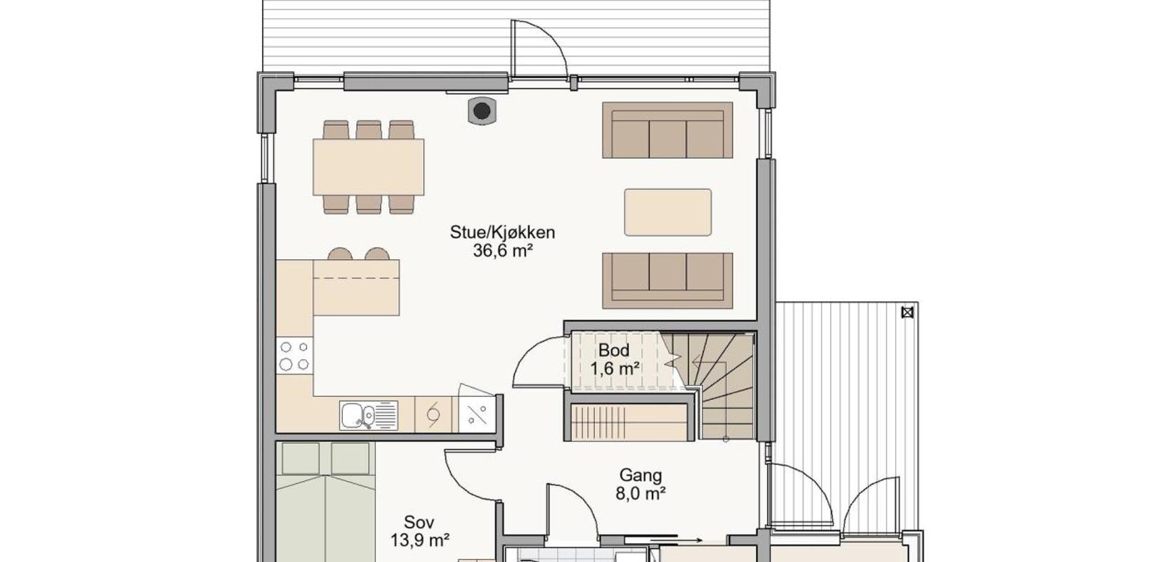
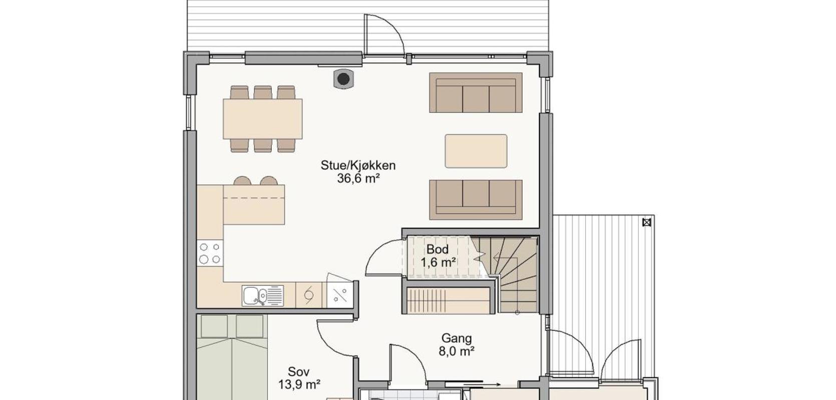
Stor stue
Skansen har et praktisk overbygd inngangsparti, med sportsbod rett utenfor hoveddøren. Dett gjør det lett å sette fra seg barnevogn eller andre ting som ikke trenger være med inn i huset. Rett innenfor døren er det også en bod. Videre kommer du inn til en romslig stue med utgang til terrasse. Det er plass til peis midt mellom spisestuen og stuen, slik at man kan få glede av den uansett hvor man sitter. Huset har et romslig L-formet kjøkken, med mulighet til å bygge på en bar-løsning. Etasjen har også et stort soverom og et bad.

Høyt under taket og to balkonger
Huset har pulttak og skrå himling, slik at man i andre etasje får en flott takhøyde på loftstuen. Det er to balkonger ut ifra andre etasjen, slik at man kan velge hele dagen om man ønsker å følge sola eller skyggen. Balkongen ut fra loftstuen er overbygd og har vegger på to kanter. Det gjør balkongen lun og fin. Glassrekkeverket gjør at den allikevel føles luftig. Andre etasjen har også tre soverom og et bad.

Bestill katalog