Bestill katalog
Bestill katalog

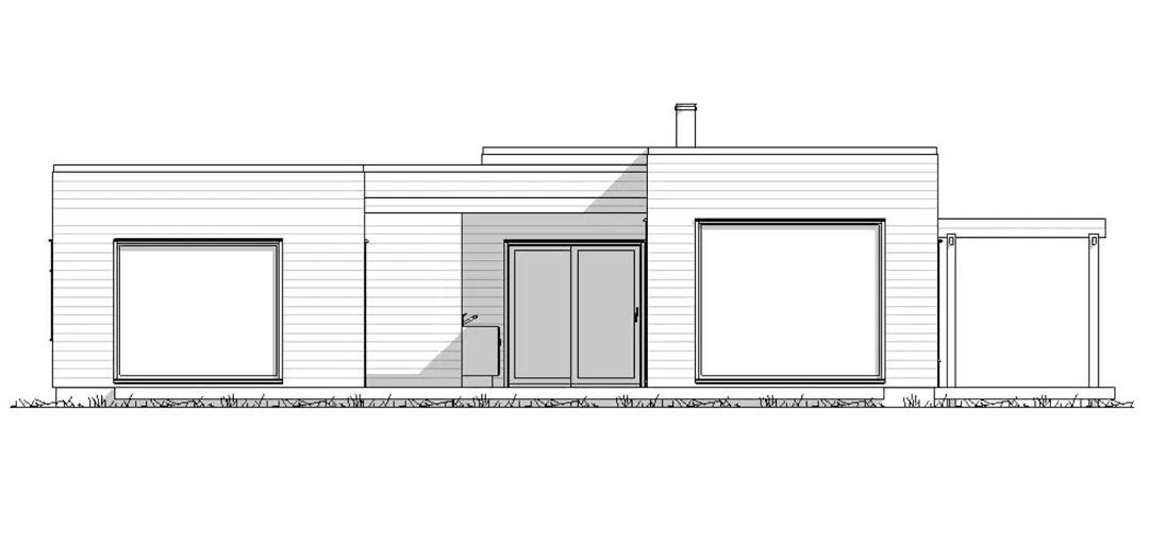
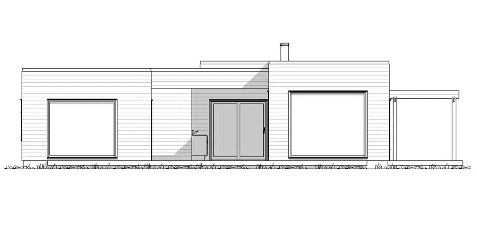
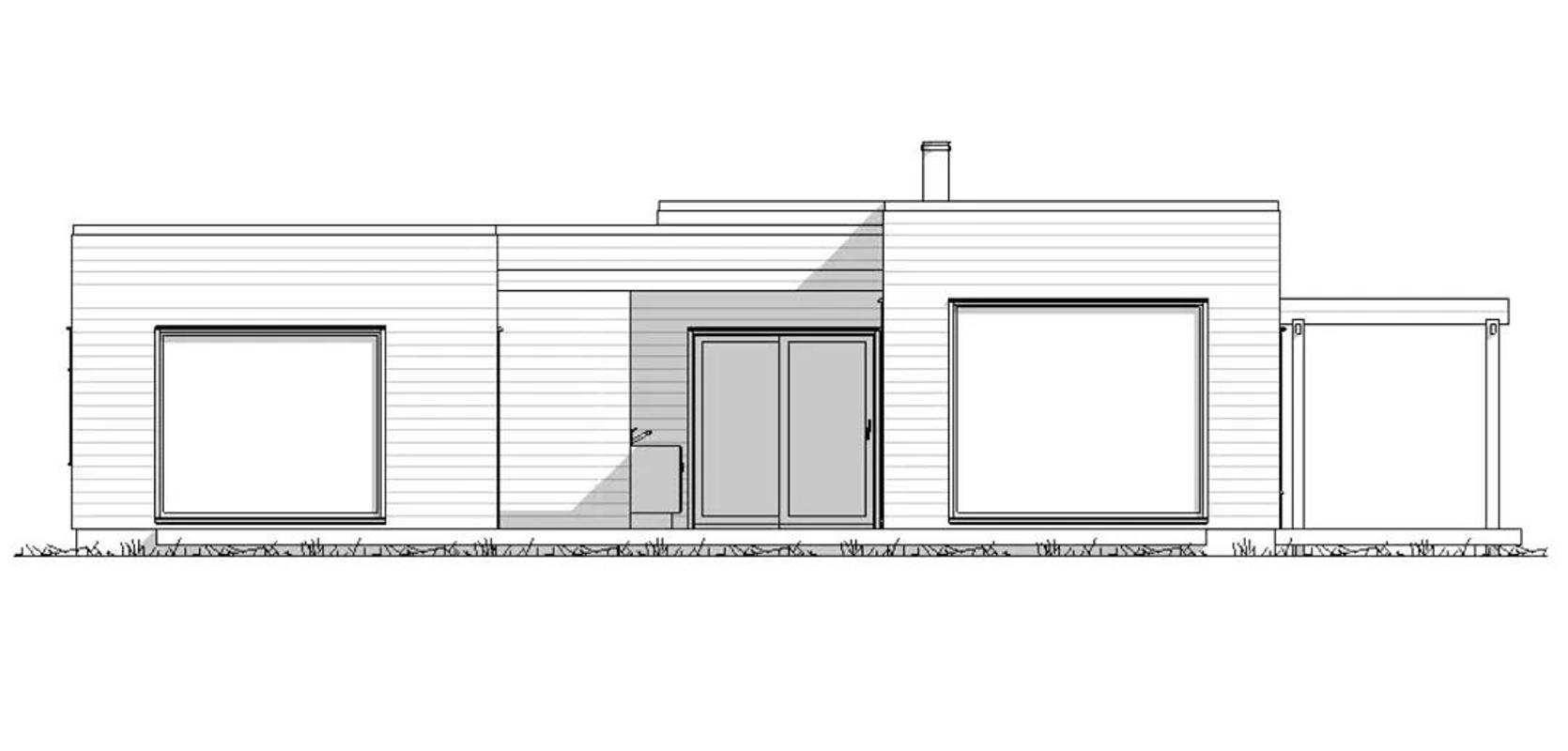
Hytte Risør

Risør hytta er en moderne funkishytte med atrium, der uterom og innerom flyter naturlig sammen. Store vinduer sørger for rikelig med naturlig lys og gir naturen en invitasjon til å komme inn i hytta. Hytta er utformet på ett plan.

  • BRA 97,2
  • P-rom
  • 3

Overbygd inngangsparti og praktisk utebod

Risør hytta har et solid overbygd inngangsparti som gir tilgang til både en utebod og hovedinngangen. Uteboden er fullt isolert og har en bred døråpning, som gir enkel tilgang til utstyr som ski, pulker, sykler, og mer. Ved siden av hoveddøren er det lysfelt for gjennomgående gløtt inn og ut mot atrium og uteplassen på andre siden av hytta.

Like innenfor inngangspartiet finner du et praktisk garderobeskap med rikelig lagringsplass av inne- og uteklær til alle sesongens aktiviteter.

Atriumhytte med flere utendørsområder

Fra gangområdet, rett over hovedinngangen, er det skyvedører som fører ut til atriumet og hyttas største uteplass. Atriumet har egen terrasse som ligger i midten av hytta. Her har du plass til å sette opp et utekjøkken, en utedusj og en sittegruppe. I tillegg er det en egen liten uteplass med overbygd pergola like ved kjøkkenet.

Egen sone for soverom med fleksibel løsning

Hytta har to til tre soverom. Du kan velge å fjerne veggen mellom de to minste soverommene for å få to større soverom. Hovedsoverommet har god garderobeplass i en passasje ved siden av rommet, og gir direkte tilgang til terrassen i atriumet. Hovedsoverommet er også skjermet i forhold til øvrige rom.

Hytta har ett baderom som er praktisk plassert med skjermet adkomst fra gangpassasjen. Badet har plass for dusj, toalett, servant, vaskemaskin og varmtvannsbereder.

Bestill hyttekatalog

Kjøkken i tilknytning til uteplass med pergola

Hva med å nyte morgenkaffen ute? I den åpne stue- og kjøkkenløsningen er det direkte utgang fra kjøkkenet til en uteplass i øst med en overbygd pergola. Kjøkkenet har godt med lysinnslipp og god oversikt i alle retninger i hytta, med naturlig lys som strømmer inn fra gangpassasjen i vest, ut mot pergolaen i øst, ut mot inngangspartiet i nord, og selvfølgelig ut mot atriumet i sør.

Peisen i oppholdsrommet er strategisk plassert nær sitteområdet og spiseplassen. De store vinduene i oppholdsrommet gir deg muligheten til å nyte naturen utenfor.

Den ideelle sjøhytta

Risør hytta er nøye planlagt med tanke på sin beliggenhet ved sjøen, mellom klipper og knauser i et åpent landskap. Den lave byggehøyden gjør det enkelt for hytta å smelte sammen med landskapet, og den finner naturlig sin plass mellom klippene og knausene mot sjøsiden.

* Alle bilder og illustrasjoner er til inspirasjon og kan avvike fra endelige tegninger.

Ta kontakt med forhandlet
}